URBAN


Vision:
Revitalize the lower city to attract people from outside, including tourists, improve the quality of life for residents, and add new residents.
Provide a short summary of your recent projects, highlighting the most important things.






Location:
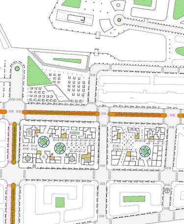
The chosen area is divided into three zones: residential, commercial, and port. Currently, there is no comprehensive interaction between these zones. Therefore, we aim to create overlapping relationships between these zones to connect the port with the city and provide public access to this area. We believe that breaking the barrier between the port and the city and developing this area will revitalize and leverage the entire region.
Planning Principles:
1. Establish a vertical traffic axis that connects to the sea.
2. Design a central residential area with commercial spaces on the ground floor. Buildings in the project will range in height from 10 meters to 60 meters.
3. The railway axis will be underground.
4. Create a central area with public spaces.
5. Add and improve existing bicycle and pedestrian paths.
6. In the port area, allow the sea to enter the project area and provide docking for boats. Surround this area with a park and a promenade along the sea.
Planning program
Urban Block two
Two buildings will contain commercial spaces on the lower floor and residential units above.




Urban Block One
The first building will contain commercial spaces on the lower floor and residential units above The second building will include commercial spaces and offices..
Urban Blocks
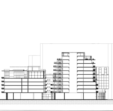
Projects section






Eastern section
Western section
Transverse sections










architectural simulations

